Cheese & Grain

WINNER of the Built Environment and Architectural Heritage GOLD Award
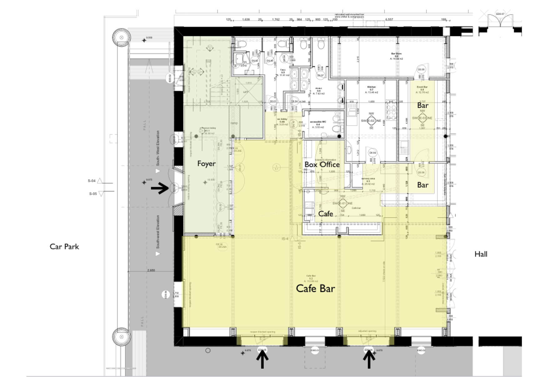
The Cheese & Grain in the centre of Frome is a multi-purpose community centre, Market Hall, performance space. It contains a Cafe, Bar, meeting rooms and office space.

The building sat uncomfortably in a car park with no evidence of its function, requiring a considerable annual subsidy from the local council. We remodelled the building to bring the inside to the community, making explicit its function & use and expanding the range of spaces and potential uses of the building. The ground floor holds a vibrant cafe which acts as a small music venue. The main hall functions as market hall, events and party space, music venue, roller skating venue and bingo hall. The upper floor houses meeting rooms & hot-desk spaces. Since completion the venue has been financially self-sustaining and has attracted world class performances from the Archbishop of Canterbury and Paul McCartney to The Foo Fighters, and winning the Muddy Stiletto Award for Best Theatre/Arts Venue in Somerset!

We also converted the rear part of the building to a large recording studio and workspaces with Heritage Lottery funding. See the Recording Studio project page.